Trang chủ » THIẾT KẾ & THI CÔNG NHÀ PHỐ – NP495

THIẾT KẾ & THI CÔNG NHÀ PHỐ – NP495

Thông tin công trình
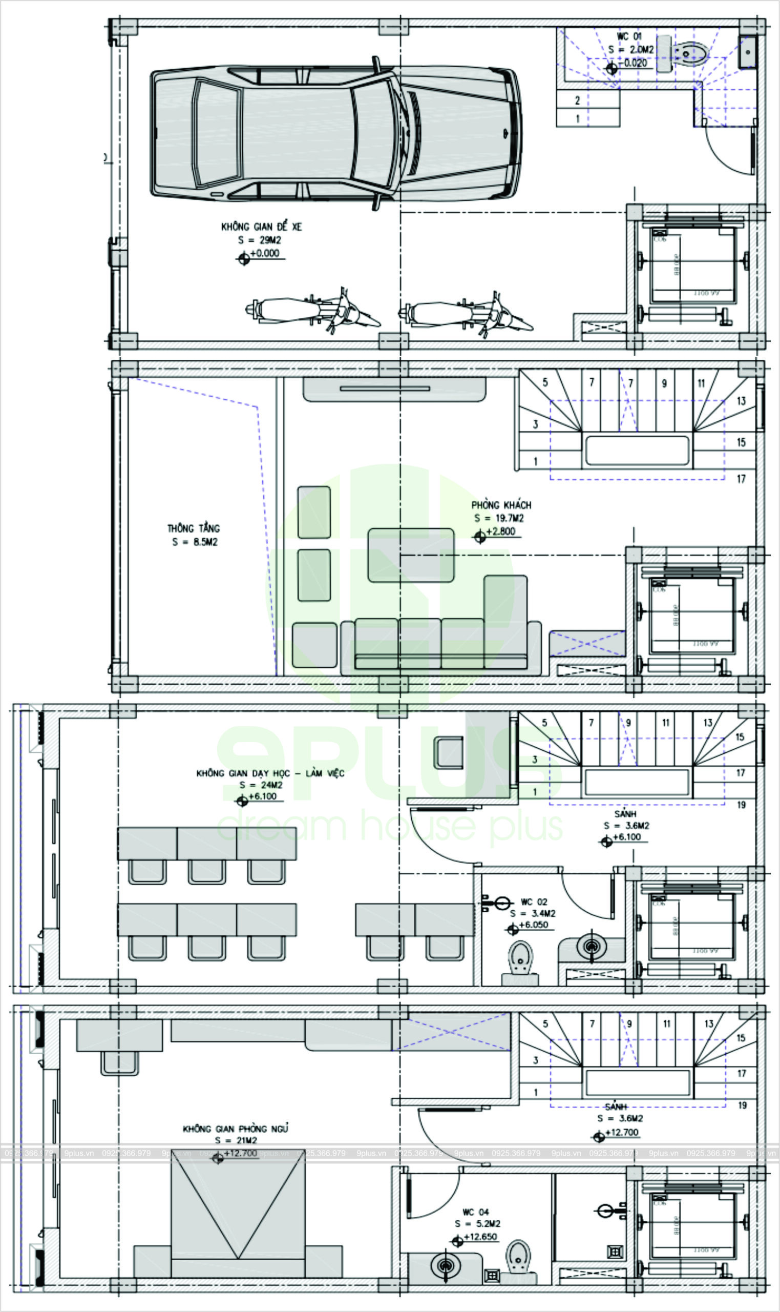
Dự án: Tư vấn thiết kế nhà ở gia đình cô Xuyến | Quy mô: 5 tầng 1 lửng 1 tum | Phong cách: Tân cổ điển
Vị trí công trình
Hà Nội
Số tầng
5tang 1lung 1tum
Diện tích đất
48
Diện tích xây dựng
285
Chi phí xây dựng

Nhà phố hay còn gọi là nhà ống, nhà liên kề là loại nhà sở hữu mặt tiền hẹp và chiều dài khiêm tốn, thường được xây sát nhau với chỉ 1 hoặc 2 mặt tiếp giáp với đường giao thông. Do đặc điểm này mà việc thiết kế cũng như thi công xây dựng nhà phố rất đặc thù. Trong loạt bài viết này, thiết kế 9PLUS sẽ giới thiệu đến bạn đọc những mẫu thiết kế nhà phố từ hiện đại đến cổ điển, tân cổ điển đẳng cấp mà bạn không nên bỏ qua.

Bài viết liên quan
Dự án: Tư vấn thiết kế ở gia đình anh Sơn | Quy mô: 4 tầng | Phong cách: Hiện đại
Dự án Tư vấn thiết kế: nhà ở gia đình chú Thú | Quy mô: 4 tầng 1 tum | Phong cách: Hiện đại
Dự án: Tư vấn thiết kế nhà ở gia đình chú Thịnh | Quy mô: 4 tầng | Phong cách: Tân cổ điển
Dự án: Thiết kế và thi công nhà ở gia đình anh chị Giang Gấm| Quy mô: 5 tầng | Phong cách: Tân cổ điển
Chủ đầu tư: Chú Minh - Địa chỉ : Ngọc Lâm, Long Biên, Hà Nội - Hạng Mục: Thiết kế – Thi Công Trọn Gói - Diện tích 1 sàn: 118 m2 - Tổng diện tích: 620 m2 - Đơn giá: 7.400.000VNĐ/m2 - Phong cách: Hiện Đại
Dự án Thiết kế và thi công: nhà ở gia đình anh Thụ | Quy mô: 3 tầng 1 tum | Phong cách: Tân cổ điển
Dự án: Thiết kế và thi công nhà ở gia đình anh Tuấn | Quy mô: 4 tầng 1tum | Phong cách: Hiện đại
Dự án: Thiết kế và thi công nhà ở gia đình anh Khoa | Quy mô: 3 tầng lửng 1 tum | Phong cách: Hiện đại
Dự án Thiết kế cải tạo: nhà ở gia đình chị Trang | Quy mô: 3 tầng 1 tum | Phong cách: Hiện đại