Trang chủ » THIẾT KẾ & THI CÔNG NHÀ PHỐ – NP437

THIẾT KẾ & THI CÔNG NHÀ PHỐ – NP437

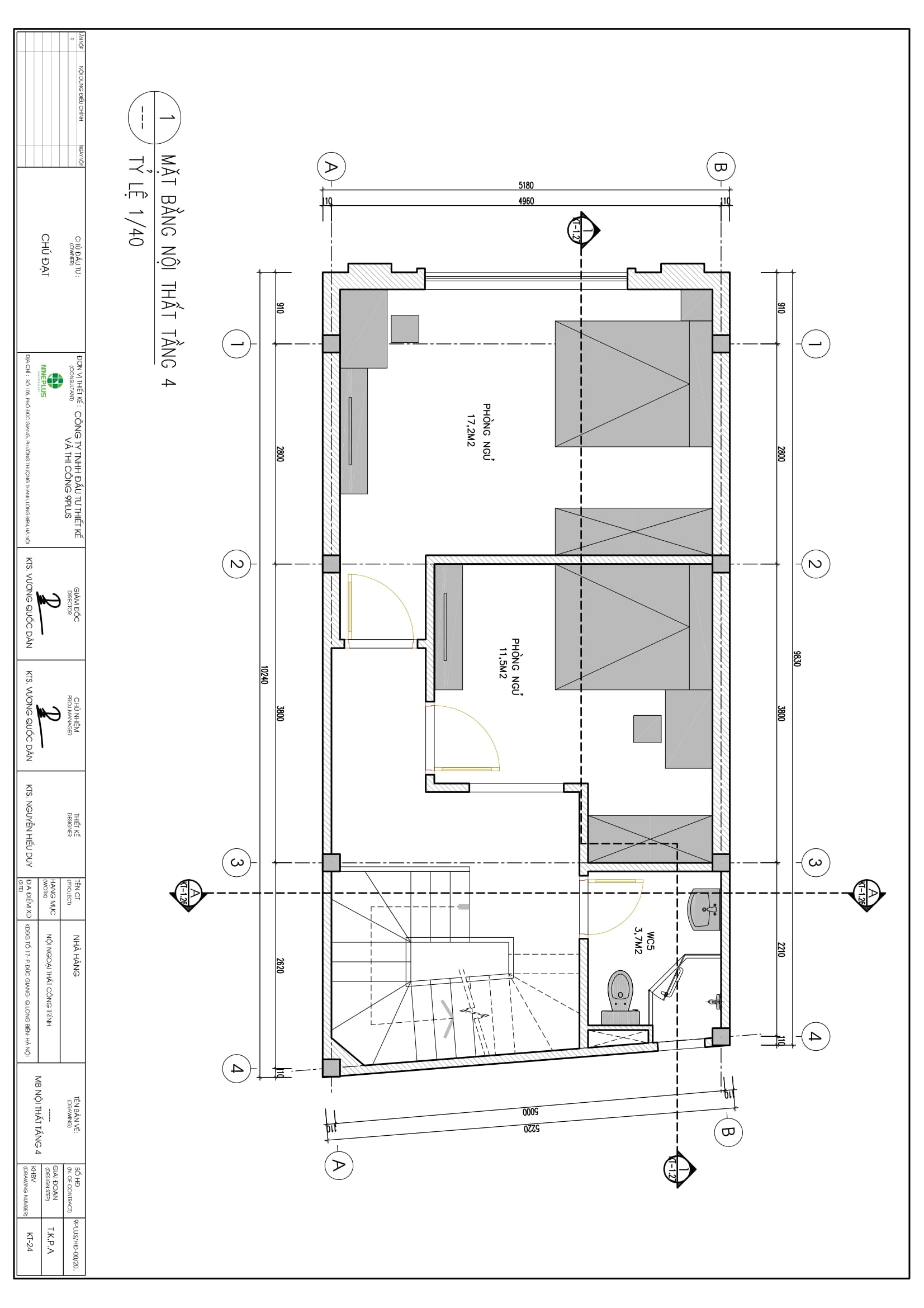
Thông tin công trình
Dự án: Tư vấn thiết kế nhà ở gia đình | Quy mô: 6 tầng | Phong cách: Hiện đại
Vị trí công trình
Số tầng
Diện tích đất
Diện tích xây dựng
Chi phí xây dựng
Bài viết liên quan
Dự án: Thiết kế và thi công nhà ở gia đình anh Thành | Quy mô: 3 tầng 1tum | Phong cách: Hiện đại
Dự án: Tư vấn thiết kế nhà ở gia đình cô Xuyến | Quy mô: 5 tầng 1 lửng 1 tum | Phong cách: Tân cổ điển
Dự án: Thiết kế và thi công nhà ở gia đình anh Tuấn | Quy mô: 4 tầng 1tum | Phong cách: Hiện đại
Dự án Tư vấn thiết kế: nhà ở gia đình chị Vui | Quy mô: 3 tầng 1 tum | Phong cách: Tân cổ điển
Dự án: Thiết kế và thi công nhà ở gia đình anh Thắng | Quy mô: 5 tầng | Phong cách: Tân cổ điển
Dự án Thiết kế và thi công: nhà ở gia đình chị Nga | Quy mô: 3 tầng 1 tum | Phong cách: Tân cổ điển
Dự án Tư vấn thiết kế: nhà ở gia đình chú Giao | Quy mô: 2 tầng 1 tum | Phong cách: Hiện đại
Dự án Tư vấn thiết kế: nhà ở gia đình chú Tuấn | Quy mô: 4 tầng 1 tum | Phong cách: Hiện đại
Dự án Thiết kế và thi công: nhà ở gia đình anh Toàn | Quy mô: 3 tầng 1 lửng 1 tum | Phong cách: Hiện Đại